Leading the Way in Community Focused Workforce Accommodations
Call:
1-250-847-2700
or Toll Free:
1-833-847-2700
Royal Camp Services Ltd
Edmonton, AB.
Apply for Work!
Home
Who we are
Catering
Safety
Camps
Camp Supply and Construction
Fleet Features
Indigenous Engagement
Careers
Contact
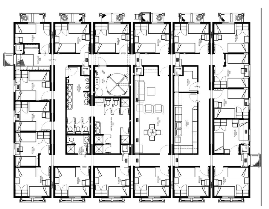
Housing Units... RCS 6 U P 53
Features
1
35 Beds Double Rooms
2
Satellite TV
3
Laundry facility
4
Lockable storage
5
Air Conditioned
6
Cost effective - quick set up
7
Rig mats included
Download a PDF
Plan Overview